Das Projekt ist im Bau.
Vormerkungen unter Diese E-Mail-Adresse ist vor Spambots geschützt! Zur Anzeige muss JavaScript eingeschaltet sein! oder 089 / 230 216 - 110
Wohnung 3 (EG) - 140,67 m² Wohnfläche 1.469.000 €
| EG |
| KG |
| ERDGESCHOSS | Verkaufsfläche m² | Grundfläche m² |
|---|---|---|
| Bad | ca. 9,00 m² | ca. 9,00 m² |
| Diele | ca. 9,13 m² | ca. 9,13 m² |
| Kind 1 | ca. 10,34 m² | ca. 10,34 m² |
| Kind 2 | ca. 11,04 m² | ca. 11,04 m² |
| Schlafen | ca. 16,12 m² | ca. 16,12 m² |
| Speise | ca. 1,95 m² | ca. 1,95 m² |
| Terrasse W03: | ca. 9,00 m² | ca. 18,00 m² |
| WC | ca. 2,40 m² | ca. 2,40 m² |
| Wohnen/Essen/Küche | ca. 48,67 m² | ca. 48,67 m² |
| Garten(inkl. Terrasse) | 150 m² | |
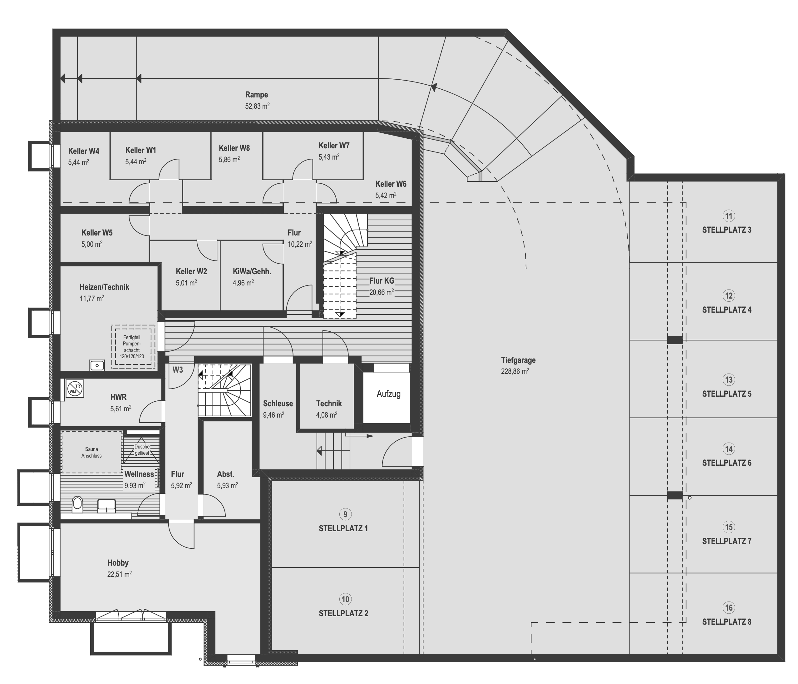
| KELLERGESCHOSS | Verkaufsfläche m² | Grundfläche m² |
| Abstellraum | ca. 2,97 m² | ca. 5,93 m² |
| Flur | ca. 2,81 m² | ca. 5,61 m² |
| Hobby | ca. 11,26 m² | ca. 22,51 m² |
| Wellness | ca. 4,97 m² | ca. 9,93 m² |
| Insgesamt | ca. 140,67 m² | ca. 174,60 m² |
Wohnung 4 (OG)   - 98,14m² Wohnfläche 1.029.000 €
| OG |
| OG | Verkaufsfläche m² | Grundfläche m² |
|---|---|---|
| Bad | ca. 9,05 m² | ca. 9,05 m² |
| Balkon 1 W04 | ca. 5,11 m² | ca. 10,22 m² |
| Balkon 2 W04 | ca. 3,50 m² | ca. 7,00 m² |
| Balkon 3 W04 | ca. 1,85 m² | ca. 3,70 m² |
| Diele/Gard. | ca. 7,94 m² | ca. 7,94 m² |
| Kind | ca. 12,42 m² | ca. 12,42 m² |
| Schlafen: | ca. 16,59 m² | ca. 16,59 m² |
| Speise | ca. 2,11 m² | ca. 2,11 m² |
| WC | ca. 3,19 m² | ca. 3,19 m² |
| Wohnen/Essen/Küche | ca. 36,38 m² | ca. 36,38 m² |
| Insgesamt | ca. 98,14 m² | ca. 108,60 m² |
Wohnung 6 (OG)   - 117,69 m² Wohnfläche 1.229.000 €
| OG |
| OG | Verkaufsfläche m² | Grundfläche m² |
|---|---|---|
| Bad | ca. 9,08 m² | ca. 9,08 m² |
| Balkon 1 W06 | ca. 5,18 m² | ca. 10,36 m² |
| Balkon 2 W06 | ca. 3,55 m² | ca. 7,09 m² |
| Balkon 3 W06 | ca. 1,85 m² | ca. 3,70 m² |
| Diele/Gard. | ca. 10,01 m² | ca. 10,01 m² |
| Du./WC | ca. 4,87 m² | ca. 4,87 m² |
| Kind 1 | ca. 10,59 m² | ca. 10,59 m² |
| Kind 2 | ca. 11,04 m² | ca. 11,04 m² |
| Schlafen: | ca. 16,12 m² | ca. 16,12 m² |
| Abstellraum | ca. 3,19 m² | ca. 3,19 m² |
| Wohnen/Essen/Küche | ca. 42,23 m² | ca. 42,23 m² |
| Insgesamt | ca. 117,69 m² | ca. 128,26 m² |
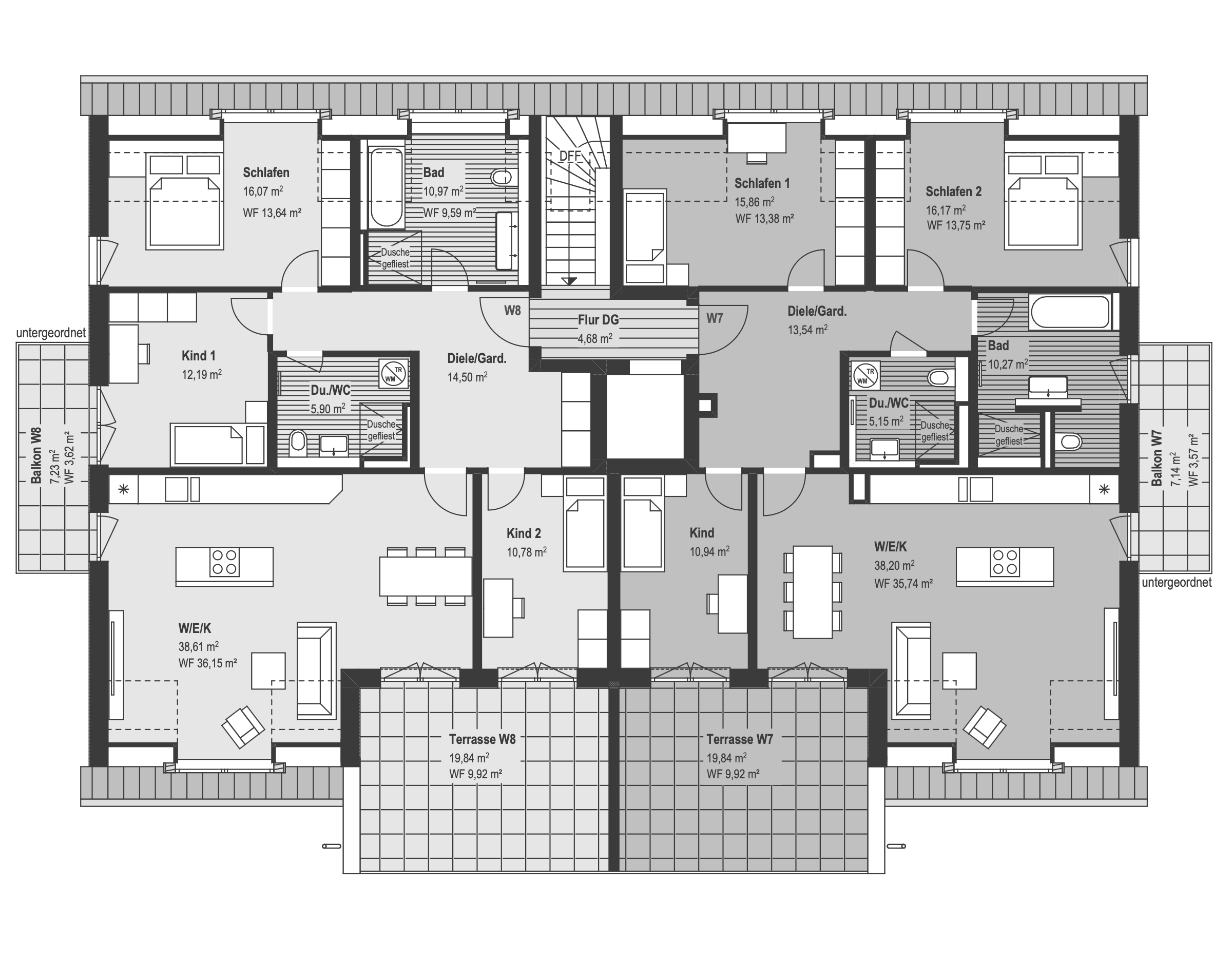
Wohnung 7 (DG)   - 116,04 m² Wohnfläche 1.249.000 €
| DG |
| DG | Verkaufsfläche m² | Grundfläche m² |
|---|---|---|
| Bad | ca. 10,27 m² | ca. 10,27 m² |
| Diele/Gard. | ca. 13,54 m² | ca. 13,54 m² |
| Du./WC | ca. 5,15 m² | ca. 5,15 m² |
| Kind | ca. 10,76 m² | ca. 10,94 m² |
| Schlafen 1: | ca. 13,38 m² | ca. 15,86 m² |
| Schlafen 2: | ca. 13,73 m² | ca. 16,17 m² |
| Terrasse W07 | ca. 9,91 m² | ca. 19,84 m² |
| Balkon W07 | ca. 3,57 m² | ca. 7,14m² |
| Wohnen/Essen/Küche | ca. 35,72 m² | ca. 38,2 m² |
| Insgesamt | ca. 116,04 m² | ca. 137,11 m² |
Wohnung 8 (DG)   - 116,24 m² Wohnfläche 1.249.000 €
| DG |
| DG | Verkaufsfläche m² | Grundfläche m² |
|---|---|---|
| Bad | ca. 9,59 m² | ca. 10,97 m² |
| Diele/Gard. | ca. 14,50 m² | ca. 14,50 m² |
| Du./WC | ca. 5,90 m² | ca. 5,90 m² |
| Kind 1 | ca. 12,19 m² | ca. 12,19 m² |
| Kind 2 | ca. 10,78 m² | ca. 10,78 m² |
| Terrasse W08 | ca. 9,92 m² | ca. 19,84 m² |
| Schlafen | ca. 13,62 m² | ca. 16,07 m² |
| Wohnen/Essen/Küche | ca. 36,12 m² | ca. 38,61 m² |
| Insgesamt | ca. 116,24 m² | ca. 136,09 m² |
